Last-Minute NYC Holiday Gift Guide 🎁
We’ve created a holiday gift guide with presents for the intrepid New Yorker that should arrive just in time—
The 1964 World’s Fair at Flushing Meadow Park in Queens had no shortage of strange and memorable exhibits, which included Sinclair Oil Corporations’ Dinoland, a proposed jet-pack, and even a bizarre Protestant film that posed humanity as a circus and Jesus Christ as a clown. It’s strange then that more attention has not been given to Jay Swayze’s equally odd underground luxury home. This especially due to the fact that it may still be hidden somewhere beneath Flushing Meadow Park, which is why historian Lori Walters from the University of Central Florida has just applied for permits from the Parks Department to locate the structure using ground-penetrating radar. Narratively got the full scoop on the history of this subterranean swank pad.

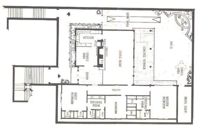
A layout of Swayze’s Underground Home at the 1964 World’s Fair, which equaled a whopping 5,600 square feet. Image via Gizmodo.
Swayze originally hailed from Plainview, Texas, where the concept for his luxury bomb shelter came about as a result of the Cuban Missile Crisis and mounting Cold War anxieties in America. He wished to update the bland, cramped quarters of many existing bomb shelters in favor of presenting the bomb fearing public with more livable if albeit more extravagant accommodations. Due in no small part to the help of Avon Cosmetics founder Jerry Henderson, who also bought underground homes for both his Vegas estate and Boulder compound, Swayze’s model of the Underground Home was built on prime presentation space between the Hall of Science and the Port Authority Heliport.
It was dubbed Block 50, Lot 5 and had a total of 5000,000 to a million visitors according to Swayze and Fair organizers. Visitors were required to descend a short staircase in order to access the 5,600 square feet of nuke-proof luxury living spcae, which included three bedrooms, a 20 inch thick earth quake resistant steel shell, and even air-conditioning. The construction took two months of digging into 15 feet of the park’s marshland and Narratively reports that Parks Department spokesman Zachary Feder claims the Underground Home was only demolished “to the best of our knowledge.” Dr. Walters thinks otherwise.
Many historians are not convinced that the structure was completely demolished, especially due to the controversial debt that mounted in the wake of the World’s Fair. They propose that the most cost effective way for the exhibit to close would be, as Gizmodo reports, to “strip the exhibit down to its studs, seal the entrance, and leave the structure to wait for future archaeologists.” According to Dr. Walters, who has asked for permission to search for the structure using non-invasive radar technology, she is looking less for hidden treasure than she is the opportunity to make an important archaeological discovery for the benefit of a younger generation. As she puts it: “For me, the real value is that we can teach kids about something that happened in their own backyard.”
See more quirky NYC facts and discoveries in our “Daily What?!” series, like the Cold War nuclear bomb shelter in the Brooklyn Bridge! Submit your own via Twitter with the hashtag #DailyWhat. Read more about the home on Narrative.ly.
Subscribe to our newsletter